MÅL FOR SOMMERHUSE
- Sommerhusområderne skal fastholdes, og deres særlige præg af sommerhusområde skal bevares, så de ikke udvikler sig i retning af parcelhusområder.
Sommerhusområderne anses for at have en stor rekreativ værdi, og bidrager til øget mental og fysisk velvære. Områderne skal indpasses i forhold til de landskabelige og naturmæssige værdier, og fremme biodiversiteten gennem ekstensiv udnyttelse af arealerne.
Kort 22.1
Sommerhusområder
22.1
De eksisterende sommerhusområder er vist på kortbilag 22.1.
22.2
Gennem lokalplanlægningen skal det sikres, at sommerhusområderne fremstår som grønne områder med god plads mellem bygningerne.
22.3
Der udlægges nye arealer til 24 sommerhuse ved Råbylille Strand, som angivet på kort 22.2.
Kort 22.2 nyt udlæg til sommerhuse ved Råbylille Strand.
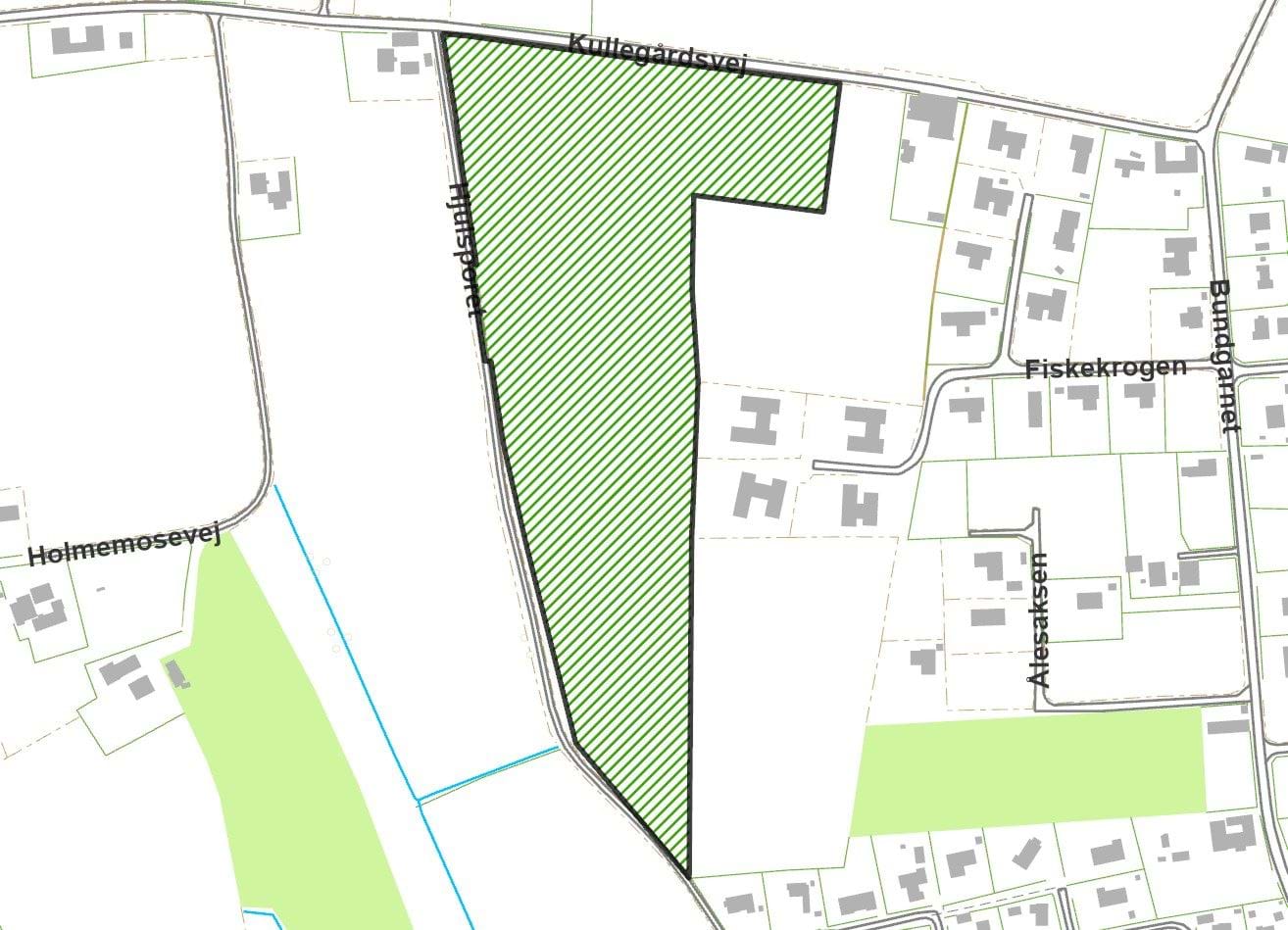
22.4
1 ha overgår fra sommerhusområde til byområde i Kostræde Banker, som angivet på kort 22.3.
Kort 22.3 ændring fra sommerhusområde til byområde i Koster Bakker
Vordingborg Kommune rummer ca. 4.600 sommerhuse fordelt på 18 områder. Særlig stor koncentration af sommerhuse findes på Møn. Store sommerhusområder findes ligeledes på Ore, i Bakkebølle og i Næs-Skaverup. Hertil kommer endnu ubebyggede sommerhusgrunde og endnu ikke udstykkede sommerhusområder, som vil kunne rumme samlet set ca. 800 sommerhuse. Restrummeligheden forventes udbygget hen over en længere årrække.
Staten har med landsplandirektiv fra 2019 muliggjort en flytning af et sommerhusområde fra Ulvshale til Råbylille. Arealet ved Ulvshale er udgået ved vedtagelsen af kommuneplantillæg nr. 22, mens udlægget ved Råbylille indarbejdes i kommuneplanen i denne revision.
Staten har med landsplandirektiv fra 2021 muliggjort ændring af sommerhusområde til byzone for et mindre areal ved Kostræde Banker. Selve ændringen af zonestatus for området skal ske gennem udarbejdelse af ny lokalplan.



